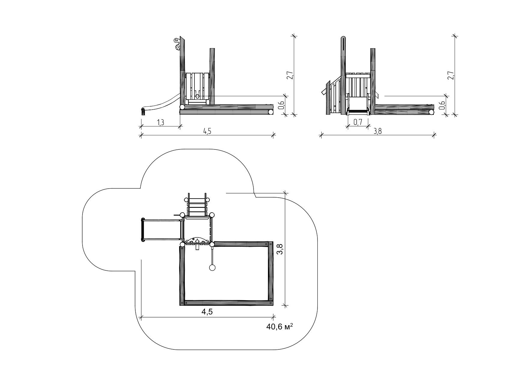
Песочная фабрика 171520

4.53.82.7
от 1
40.1
0.6
Файлы 2D DWG