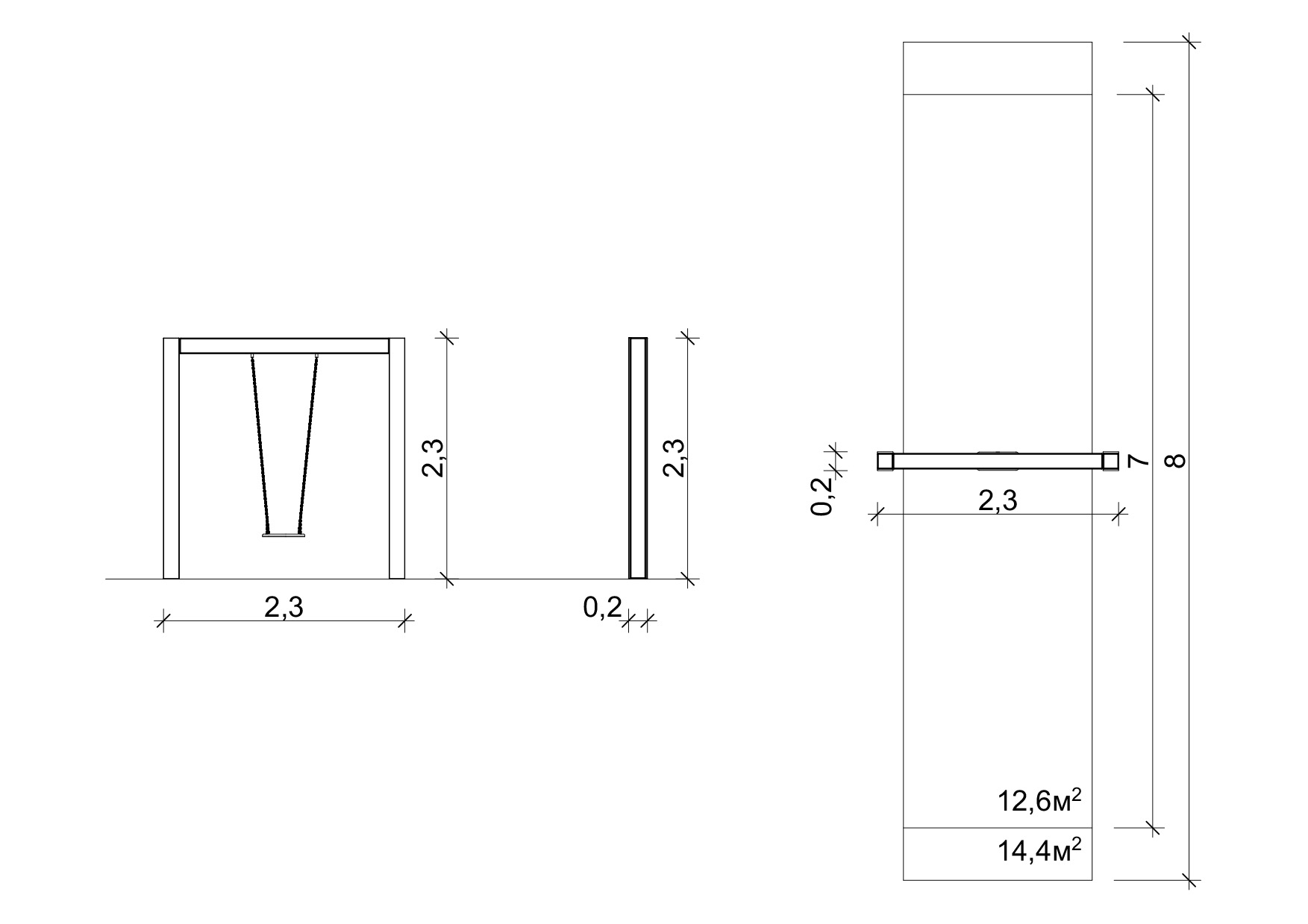
Качели 146020

0.22.32.3
от 3
14.4
1
1.4
Файлы 2D DWG